Description
Honeymoon Estate 🇱🇧..
We Provide Homes You Can Create Memories..
Upgrade your living life with the luxurious apartment in Kartaba Street Highway (Hallat) For Sale..
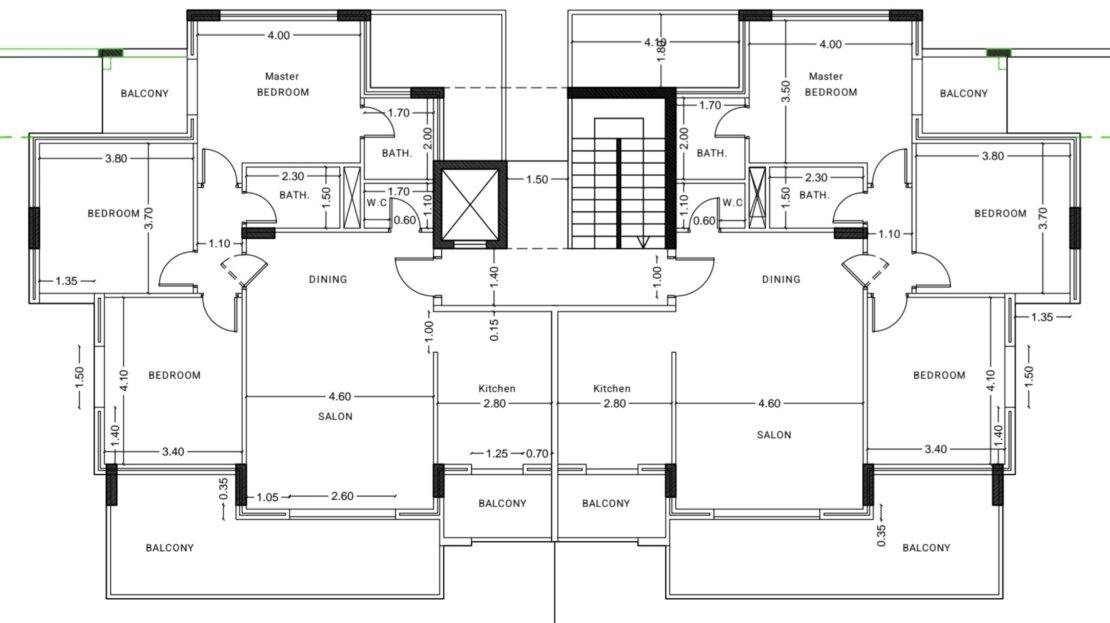
Measurements 150m2..
Installation For Five Years..
Down payment $25 000..
The Two-year term ends..
(FAST INFORMATION)..
🏰 Four Floors
🏰 100% Stoney Building
📍 Location: Hallat
💲 Price Sale: $125 000
🏰 Apartment For Sale
🏡 The Apartment Owner is Responsible for the Completion of all Work, Including the Kitchen, Bathrooms, etc..
🏰 Underconstruction 25%
📐 Size: 150 Sqm
🛏 1 Master bedroom
🛏 Regular: 2 Bedrooms
🍽️ Dinning Room
🚽 3 Bathrooms
🍽️ 1 Kitchen With Balcony
✅️ 1 Salon
✅️ Huge Balcony
✅️ 2 Entrances
🔥 Chauffage Heating Installation
✨️ AC Cooler Installation
🛗 Elevator
🏡 2 Appartments Per Floor
✅️ Surrounded With Balconies
✅ Greatly Green Mountain Green View
⛰️ Viewing
🅿️ (1) Underground
🅿️ (Many) Outside
💰 Installment Available 5 Years
🏚 1 Year Old Building
🏚 New Building
✅️ Quiet Area Location
✅️ High End finishing With High Quality
✅️ Breath Balcony Terrace Taking View
✅️ Video Phone For Each Apartment
✅️ Security Cameras For Common Areas
✅️ Covered With Sun Daily
💰 Down payment 17%
✅️ The Two-year term ends
🛒 Located Minutes Away From Many Other Points Of Interest
✅️ Greatly Gypsum Decorating
💡 Lighting Decorating light
✅️ Under Construction
✅️ Water Well
✅️ 1 Cave
(PRICES)..
Price: $125 000 Installation Payment..
So thankful Plus 2.5% commission..
Call: anytime 009613244677..
Feel Free To Ask For Further Information..
(NEGATIVE SITE OF THE APPARTMENT)..
Underconstruction..
No Maid Room..
No Wooden Shemineh..
(POSITIVE SITE OF THE APPARTMENT)..
Very Quiet Location..
Installation Available..
Huge & Strong Beautiful Building..
Surrounded With Balconies..
Hot Deal Price..
Super Deluxe..
Amazingly Surrounded Mountain ⛰️..
The Apartment Owner is Responsible for the Completion of all Work, Including the Kitchen, Bathrooms, etc..
Qartouazi well water..
(ABOUT US)..
📞 Contact Us: Anytime 009613244677..
Feel Free to Ask for Further Information..
https://wa.me/c/96171891524
Ref: kh a ttabgh a ou








